Verkauft
Erstbezug nach Kernsanierung!
84513 Töging am Inn
-
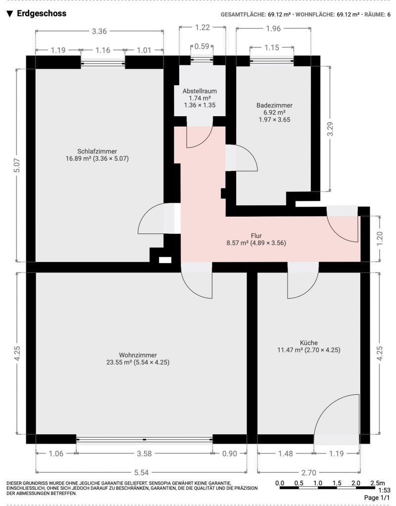
Wohnfläche
70 m2
-
Grundstücksfläche
673 m2
-
Kaufpreis
239.000 €
-
zzgl. Maklerprovision: 2,38 inkl. ges. MWSt.
Mehr erfahren
- 2 Zimmer - ca. 70 qm Wohnfläche
- Baujahr 1970 - Erstbezug nach Kernsanierung 2023
- Außenstellplatz - geräumiger Kellerraum
- Öl-Zentralheizung (Baujahr 2002) - 8 Parteien Haus
- Baujahr 1970 - Erstbezug nach Kernsanierung 2023
- Außenstellplatz - geräumiger Kellerraum
- Öl-Zentralheizung (Baujahr 2002) - 8 Parteien Haus
Wir freuen uns, Ihnen diese wunderschöne Erdgeschosswohnung in Töging am Inn vorstellen zu dürfen. Mit ihren zwei Zimmern und einer Fläche von 70 Quadratmetern bietet sie ein komfortables und gemütliches Wohnambiente. Das Objekt wurde im Jahr 2023 umfassend kernsaniert und präsentiert sich in einem modernen und ansprechenden Zustand. Die Sanierung ist bis auf die Innentüren und die Wohnungstüre vollständig abgeschlossen.
Ein besonderes Highlight dieser Wohnung ist das Badezimmer mit Fenster und einer großzügigen ebenerdigen Dusche. Hier können Sie entspannte Momente genießen und zur Ruhe kommen. Die Verwendung hochwertiger Materialien zeugt von erstklassiger Handwerkskunst und schafft eine angenehme Atmosphäre.
In der gesamten Wohnung wurden LED-Spots installiert, die für eine stimmungsvolle Beleuchtung sorgen und ein modernes Wohngefühl vermitteln. Der Strom wurde komplett erneuert, um Ihnen ein sicheres und zeitgemäßes Wohnerlebnis zu bieten.
Der Wohnbereich wurde mit einem hochwertigen Vinylboden ausgestattet, der nicht nur ästhetisch ansprechend ist, sondern auch pflegeleicht und strapazierfähig. Die Fliesen im Bad, Abstellraum und in der Küche verleihen den Räumen einen stilvollen Charakter und erleichtern die Reinigung.
Ein weiteres Plus dieser Wohnung ist der Abstellraum mit Fenster, der zusätzlichen Stauraum bietet und flexibel genutzt werden kann.
Die Wohnung bietet außerdem Zugang zum Gemeinschaftsgarten, der uneingeschränkt genutzt werden kann. Hier können Sie die Natur genießen und entspannte Stunden im Freien verbringen.
Überzeugen Sie sich selbst von diesem attraktiven Angebot und vereinbaren Sie noch heute einen Besichtigungstermin. Wir freuen uns darauf, Ihnen diese Wohnung persönlich vorzustellen und Ihnen weitere Informationen zu geben.
Hinweis: Auf Außenaufnahmen wurden verzichtet, da die komplette Außenfassade des Gebäudes im Zuge eines Hagelschadens über die Wohngebäudeversicherung noch erneuert wird.
Ein besonderes Highlight dieser Wohnung ist das Badezimmer mit Fenster und einer großzügigen ebenerdigen Dusche. Hier können Sie entspannte Momente genießen und zur Ruhe kommen. Die Verwendung hochwertiger Materialien zeugt von erstklassiger Handwerkskunst und schafft eine angenehme Atmosphäre.
In der gesamten Wohnung wurden LED-Spots installiert, die für eine stimmungsvolle Beleuchtung sorgen und ein modernes Wohngefühl vermitteln. Der Strom wurde komplett erneuert, um Ihnen ein sicheres und zeitgemäßes Wohnerlebnis zu bieten.
Der Wohnbereich wurde mit einem hochwertigen Vinylboden ausgestattet, der nicht nur ästhetisch ansprechend ist, sondern auch pflegeleicht und strapazierfähig. Die Fliesen im Bad, Abstellraum und in der Küche verleihen den Räumen einen stilvollen Charakter und erleichtern die Reinigung.
Ein weiteres Plus dieser Wohnung ist der Abstellraum mit Fenster, der zusätzlichen Stauraum bietet und flexibel genutzt werden kann.
Die Wohnung bietet außerdem Zugang zum Gemeinschaftsgarten, der uneingeschränkt genutzt werden kann. Hier können Sie die Natur genießen und entspannte Stunden im Freien verbringen.
Überzeugen Sie sich selbst von diesem attraktiven Angebot und vereinbaren Sie noch heute einen Besichtigungstermin. Wir freuen uns darauf, Ihnen diese Wohnung persönlich vorzustellen und Ihnen weitere Informationen zu geben.
Hinweis: Auf Außenaufnahmen wurden verzichtet, da die komplette Außenfassade des Gebäudes im Zuge eines Hagelschadens über die Wohngebäudeversicherung noch erneuert wird.
Christina Wimmer
Immobilienvermittlerin | Betriebswirtin
Termine nach Vereinbarung
Energieausweisdaten
-
Art des Energieausweises im Sinne des § 17 Absatz 1 Satz 1
VERBRAUCH
-
Energieverbrauchkennwert
153.60
-
Primärenergieträger
Öl
-
Energieeffizienzklasse
E
Weitere WimmerImmo
Immobilienangebote
-
VerkauftKleine, renovierungsbedürftige Wohnung sucht neuen Eigentümer!
Ort
84489 Burghausen
Wohnfläche
52 m2
Kaufpreis
159.000 €
-
Das perfekte Zuhause für Ihre Familie!
Ort
84568 Pleiskirchen
Wohnfläche
152 m2
Kaufpreis
639.000 €
-
Für alle, die Ruhe im Grünen suchen!
Ort
84367 Tann
Wohnfläche
166 m2
Kaufpreis
395.000 €
-
Kleines Schmuckstück sucht Handwerker!
Ort
84367 Tann
Wohnfläche
94 m2
Kaufpreis
195.000 €
-
Großes Haus mitten im Grünen!
Ort
84518 Garching an der Alz / Wald an der Alz
Wohnfläche
221 m2
Kaufpreis
529.000 €
-
VermietetKlein aber fein!
Ort
84478 Waldkraiburg
Wohnfläche
45 m2
Kaltmiete
450 €
-
VermietetErstbezug! Stilvolle Reihenhäuser in ruhiger Lage von Töging am Inn
Ort
84513 Töging am Inn
Wohnfläche
98 m2
Kaltmiete
1.300 €
-
VermietetErstbezug! Stilvolle Reihenhäuser in ruhiger Lage von Töging am Inn
Ort
84513 Töging am Inn
Wohnfläche
99 m2
Kaltmiete
1.200 €
-
VermietetErstbezug! Stilvolle Reihenhäuser in ruhiger Lage von Töging am Inn
Ort
84513 Töging am Inn
Wohnfläche
98 m2
Kaltmiete
1.300 €
-
VermietetNeubau-Reihenhäuser zur Miete in ruhiger Lage von Töging am Inn!
Ort
84513 Töging am Inn
Wohnfläche
101 m2
Kaltmiete
1.300 €
-
VerkauftWohnen im Herzen von Altötting!
Ort
84503 Altötting
Wohnfläche
69 m2
Kaufpreis
268.000 €
-
VerkauftKlein aber fein - 2-Zimmer-Wohnung in Altötting!
Ort
84503 Altötting
Wohnfläche
49 m2
Kaufpreis
129.000 €
-
Geräumige 4-Zimmer-Wohnung in Burgkirchen sucht neuen Eigentümer!
Ort
84508 Burgkirchen
Wohnfläche
89 m2
Kaufpreis
210.000 €
-
VerkauftDie ideale erste eigene Wohnung!
Ort
84503 Altötting
Wohnfläche
65 m2
Kaufpreis
209.000 €
-
VerkauftVermietete Gewerbeeinheit mitten in Neuötting!
Ort
84524 Neuötting
-
VerkauftHier baut Ihr neues Zuhause – Baugrundstück in Simbach am Inn!
Ort
84359 Simbach am Inn
-
VerkauftIhr Zuhause wartet auf Sie!
Ort
84508 Burgkirchen an der Alz / Hirten
Wohnfläche
142 m2
Kaufpreis
449.000 €
-
Renovierte, prestigeträchtige Villa mit Meerblick und großzügigen Räumen!
Ort
66022 Fossacesia
Wohnfläche
180 m2
Kaufpreis
395.000 €
-
VerkauftHier Wohnen Sie bis ins hohe Alter!
Ort
84503 Altötting
Wohnfläche
97 m2
Kaufpreis
349.000 €
-
VerkauftTraumhafte 3-Zimmer-Etagenwohnung im Herzen von Landshut!
Ort
84034 Landshut
Wohnfläche
81 m2
Kaufpreis
249.736 €
-
VerkauftSanierte Kapitalanlage mit solventem Mieter!
Ort
84518 Garching an der Alz
Wohnfläche
104 m2
Kaufpreis
259.000 €
Kaltmiete
750 €
-
VerkauftHier fühlt sich Ihr Geld wohl - ob Eigennutzung oder Kapitalanlage!
Ort
84034 Landshut
Wohnfläche
33 m2
Kaufpreis
159.274 €
-
VerkauftExklusives Wohnen direkt am Waldrand!
Ort
84513 Töging am Inn
Wohnfläche
185 m2
Kaufpreis
585.000 €
-
VerkauftKeine Lust auf Renovieren? Hier können Sie direkt einziehen!
Ort
84375 Kirchdorf am Inn
Wohnfläche
147 m2
Kaufpreis
399.000 €
-
VerkauftTraumhafte 3-Zimmer-Etagenwohnung im Herzen von Landshut!
Ort
84034 Landshut
Wohnfläche
81 m2
Kaufpreis
346.408 €
-
VerkauftHier fühlt sich Ihr Geld wohl - ob Eigennutzung oder Kapitalanlage!
Ort
84034 Landshut
Wohnfläche
33 m2
Kaufpreis
167.484 €
-
VerkauftWohnen mitten im Zentrum von Burghausen!
Ort
84489 Burghausen
Wohnfläche
74 m2
Kaufpreis
245.000 €
-
VerkauftEinziehen und Wohlfühlen in Burghausen!
Ort
84489 Burghausen
Wohnfläche
76 m2
Kaufpreis
289.000 €
-
VerkauftIhr neues Zuhause: Exklusive Neubauwohnung in Top-Lage!
Ort
83308 Trostberg
Wohnfläche
68 m2
Kaufpreis
308.000 €
-
VerkauftHier werden Wohnträume wahr!
Ort
83308 Trostberg
Wohnfläche
97 m2
Kaufpreis
434.500 €
-
VerkauftViel Wohnqualität auf kleinem Raum!
Ort
84524 Neuötting
Wohnfläche
69 m2
Kaufpreis
259.000 €
-
VerkauftWohnen mitten im Zentrum!
Ort
84543 Winhöring
Wohnfläche
88 m2
Kaufpreis
299.000 €
-
VerkauftHier werden Wohnträume wahr!
Ort
84539 Ampfing
Wohnfläche
92 m2
Kaufpreis
494.000 €
-
VerkauftIdeale Kapitalanlage!
Ort
84494 Neumarkt-Sankt Veit
Wohnfläche
65 m2
Kaufpreis
149.000 €
Kaltmiete
450 €
-
VermietetWohnen in einer traumhaften Kulisse!
Ort
84489 Burghausen
Wohnfläche
87 m2
Kaltmiete
970 €
-
VerkauftKaufen. Einziehen. Zuhause sein.
Ort
84503 Altötting
Wohnfläche
78 m2
Kaufpreis
249.000 €
-
VermietetWohnen im Herzen Altöttings!
Ort
84503 Altötting
Wohnfläche
64 m2
Kaltmiete
640 €
-
VermietetModerne, exklusive Doppelhaushälfte in Mühldorf am Inn!
Ort
84453 Mühldorf am Inn
Wohnfläche
154 m2
Kaltmiete
1.700 €
-
VermietetKlein aber fein!
Ort
84478 Waldkraiburg
Wohnfläche
27 m2
Kaltmiete
380 €
-
VerkauftKaufpreisanpassung - hier finden Sie Ihr Zuhause!
Ort
84478 Waldkraiburg
Wohnfläche
113 m2
Kaufpreis
325.000 €
-
VerkauftHier können Sie Ihre Wohnideen verwirklichen!
Ort
84524 Neuötting
-
VerkauftBesondere Lage für Naturliebhaber!
Ort
84518 Garching a.d. Alz
Wohnfläche
147 m2
Kaufpreis
369.000 €
-
VerkauftHier findet jedes Familienmitglied seinen Platz!
Objektart
Haus
Ort
84577 Tüßling
Wohnfläche
175 m2
Kaufpreis
414.000 €
Diese Website benutzt Cookies, die für den technischen Betrieb der Website erforderlich sind und stets gesetzt werden.